Pronájem 2+1, 52 m2 Bělá pod Bezdězem, Masarykovo nám.

12.000,- Kč / měsíčně

Lokalita

Masarykovo nám. 16, Bělá pod Bezdězem

Dispozice

2_1

Výměra nemovitosti

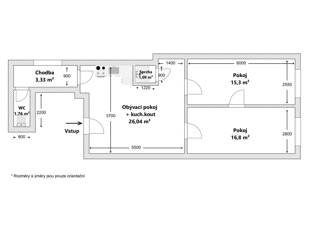
Celková podlahová plocha bytu je 52m2

Náklady na provoz

Nájemné 12.500,-, zálohy na služby cca 3.800,- pro 2 osoby

Popis

V zastoupení majitele Vám nabízíme příjemný byt k pronájmu v Bělé pod Bezdězem, Masarykovo nám.

Dispozičně se jedná o byt 2+1 o velikosti 52 m2. Pokoje jsou neprůchozí. Vhodné i jako spolubydlení.
Koupelna se sprchovým koutem.

Byt je po částečné rekonstrukci, nezařízen. K dispozici je pouze pračka.

Byt je umístěn ve 2. patře. Parkování možné před domem.

Kauce 24.000,-
Nájemné 12.000,-
Zálohy na služby cca 3.800,- (pro 2 osoby)

Ideální pro 2 osoby, k dispozici volný ihned.

Těšíme se na společnou prohlídku.

Půdorys

Galerie

Zprostředkovává:

Lucie Jakešová

lucie.jakesova@vivafin.cz
T: 605 352 752

VIVAFIN logo